Codice CP/1051 - LUVINATE (VA): ampio trilocale in porzione di casa
    CASA + IMMOBILIARE, propone in vendita ampio trilocale all'interno di una porzione di casa terra-cielo in posizione tranquilla e servita a soli 15 minuti dal centro di Varese.

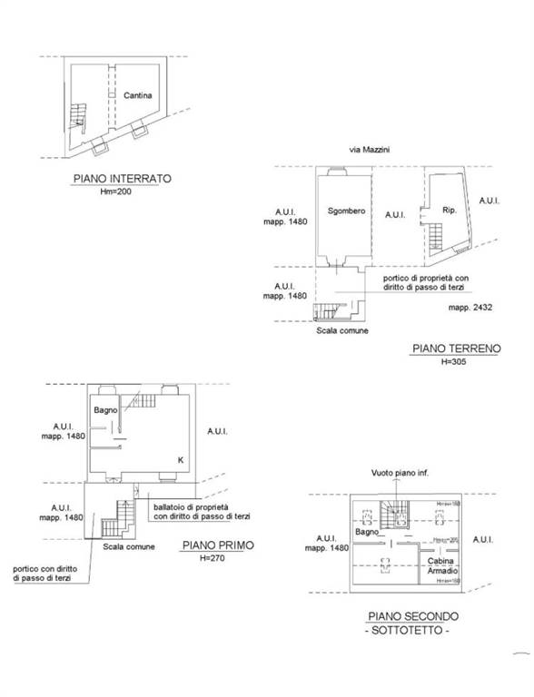
    L' immobile è stato completamente ristrutturato nel 2025, e offre 100 m² di spazio ben distribuito su tre livelli, ideale per giovani coppie o piccoli nuclei familiari che cercano indipendenza e costi di gestione minimi.

    Al primo piano, la zona giorno è luminosa e accogliente, con una cucina a vista che invita a momenti conviviali. Il disimpegno conduce a un bagno finestrato, perfetto per gli ospiti.
    Salendo al secondo piano, si trova una zona notte mansardata caratterizzata da travi a vista e velux, una camera matrimoniale con cabina armadio e una cameretta.
    Il moderno bagno con doccia completa questa area privata.

    Al piano terra con ingresso indipendente, un ampio locale studio/taverna/hobby offre spazio per il relax o per le attività creative.

    La casa è dotata di un box, lavanderia e cantinetta, garantendo comodità e funzionalità. Con zero spese condominiali questa proprietà è pronta per essere abitata da subito.
    Non perdere l'opportunità di vivere in un ambiente ristrutturato e confortevole.

    • Prezzo
      175.000 EUR
    • Metri quadri
      100
    • Classe
      G (321,12 [kWh/m²a])
    • Locali
      4
    • Mq Commerciali
      100
    • Box
      1
    • Stato Immobile
      Ristrutturato
    • Grado
      Medio
    • Posizione
      Centro Storico
    • Piano
      Piano Terra
    • Totale Piani
      Tre
    • Lati Liberi
      3
    • Giardino
      No
    • Arredi
      Non Arredato
    • Tipo Soggiorno
      Doppio
    • Tipo Cucina
      A Vista
    • Riscaldamento
      Autonomo
    • Tipo Riscaldam.
      Caldaia
    • Tipo Impianto
      Radiatori
    • Fonte Energetica
      Metano
    • Acqua Calda
      Autonoma
    • Raffrescamento
      No
    • Infissi
      Legno Doppio Vetro
    • Serramenti
      Buono
    • Persiana
      Persiana Legno
    • Pavim. Giorno
      Ceramica
    • Pavim. Notte
      Parquet
    • Pavim. Cucina
      Ceramica
    • Pavim. Bagno
      Ceramica
    • Accesso Disabili
      No
    • Accesso interno disabili
      Non accessibile
    • Appartamenti
      Uno
    • Isolamento
      Non presente
    • Isolamento termico
      Nessuno
    • Isolamento acustico
      Nessuno
    • Destinato a residenti
      Si
    • VIA Mazzini 1, Luvinate (VA)