Codice CP/1040 - VARESE: vicinanze centro città - ampio 5 locali con doppi servizi
    In contesto d'epoca, proponiamo particolare appartamento di generose dimensioni, in posizione servita a pochi passi dal centro città.

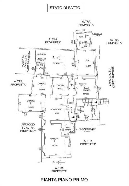
    Posizionato al primo piano, l'appartamento ha caratteristiche uniche, in origine composto da due appartamenti, un bilocale e un trilocale, risulta essere molto versatile; può essere ideale per una famiglia numerosa oppure per due nuclei appartenenti alla stessa famiglia.

    L'immobile e composto da: ingresso, soggiorno, cucina semi abitabile, disimpegno, studio, tre camere e tripli servizi.
    Gran parte dei locali affacciano su un terrazzo riservato di ca. 25 mq. La proprietà si completa con un box singolo e una cantina. Termoautonomo, libero subito.

    Le foto della facciata esterna sono soggette a rielaborazione grafica, per illustrare il potenziale dell' immobile.
    • Prezzo
      210.000 EUR
    • Metri quadri
      180
    • Spese condominiali (annue)
      1.500 EUR
    • Classe
      G (250,24 [kWh/m²a])
    • Locali
      5
    • Mq Commerciali
      180
    • Box
      1
    • Mq Box
      15
    • mq Terrazzo
      25
    • Stato Immobile
      Buono
    • Grado
      Medio
    • Piano
      Primo
    • Orientamento
      Sud Nord
    • Totale Piani
      Due
    • Lati Liberi
      3
    • Tipo Soggiorno
      Soggiorno
    • Tipo Cucina
      Abitabile
    • Riscaldamento
      Autonomo
    • Tipo Riscaldam.
      Caldaia
    • Tipo Impianto
      Radiatori
    • Fonte Energetica
      Gas
    • Acqua Calda
      Autonoma
    • Infissi
      PVC Doppio Vetro
    • Serramenti
      Buono
    • Persiana
      Tapparella Legno
    • Pavim. Giorno
      Ceramica
    • Pavim. Notte
      Parquet
    • Pavim. Cucina
      Ceramica
    • Pavim. Bagno
      Ceramica
    • Accesso Disabili
      Rampa
    • Via Giuseppe Vincenzo Walder 36, Varese (VA)