Codice CP/751 - VARESE: Ville singole di nuova costruzione
    VARESE - MONTELLO: in posizione residenziale di prestigio, queste due ville singole di nuova costruzione offrono un design moderno e funzionale, con un piano abitativo su un unico livello che garantisce comfort e praticità. Ogni villa dispone di ampi soggiorni luminosi e cucine abitabili o a vista, perfette per accogliere amici e familiari.

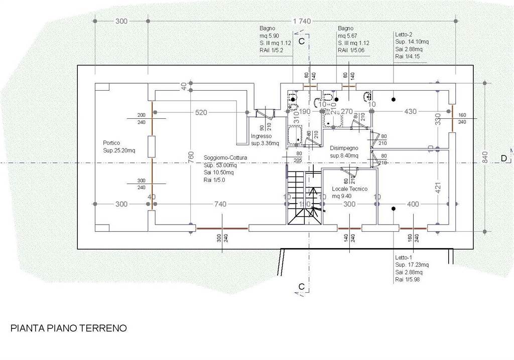
    Con tre camere da letto e doppi servizi, c'è spazio per tutti. Il locale hobby/multiuso nel mansardato è ideale per dar vita ai tuoi progetti creativi. Non dimenticare la comodità dell'autorimessa tripla e il terreno pertinenziale di circa 1.100 mq, dove potrai goderti momenti di relax all'aria aperta.

    Queste ville, mai abitate prima, sono dotate di tecnologia di ultima generazione e attenzione alla qualità costruttiva. Con una superficie commerciale di 220 m² e calpestabile di 190 m², ogni dettaglio è stato pensato per offrire il massimo del comfort. Approfitta della classe energetica A4, con un consumo di energia ridotto a soli 20,70 kWh/m² all'anno. Non perdere l'opportunità di vivere in un ambiente esclusivo e raffinato!

    Prezzo e approfondimenti presso i nostri uffici.
    • Prezzo
      850.000 EUR
    • Metri quadri
      220
    • Classe
      A4 (20,7 [kWh/m²a])
    • Locali
      4
    • Mq Commerciali
      220
    • Mq Calpestabili
      190
    • Box
      2
    • Mq Box
      70
    • Posti auto
      2
    • Mq Giardino
      1100
    • mq Terrazzo
      26
    • Stato Immobile
      Nuovo
    • Grado
      Signorile
    • Posizione
      Montagna
    • Panorama
      Vista Monti
    • Piano
      Piano Terra
    • Orientamento
      Sud Ovest
    • Lati Liberi
      4
    • Giardino
      Privato
    • Arredi
      Non Arredato
    • Tipo Soggiorno
      Doppio
    • Tipo Cucina
      Abitabile
    • Riscaldamento
      Autonomo
    • Tipo Riscaldam.
      Pompa di Calore
    • Tipo Impianto
      Pavimento
    • Fonte Energetica
      Fotovoltaico
    • Acqua Calda
      Autonoma
    • Infissi
      PVC Triplo Vetro
    • Serramenti
      Nuovo
    • Persiana
      Oscurante Metallo
    • Pavim. Giorno
      Parquet
    • Pavim. Notte
      Parquet
    • Pavim. Cucina
      Ceramica
    • Pavim. Bagno
      Ceramica
    • Cantina - Solaio
      Cantina
    • Accesso Disabili
      Nessuna Barriera
    • Via Miogni , Varese (VA)