+39 0332831830
|
info@studiocasapiu.com
|
Home
Immobili
Vendite
Affitti
Attività
Immobili commerciali
Cantieri
Chi siamo
Servizi
Vendi il tuo immobile
Lavora con noi
Contatti
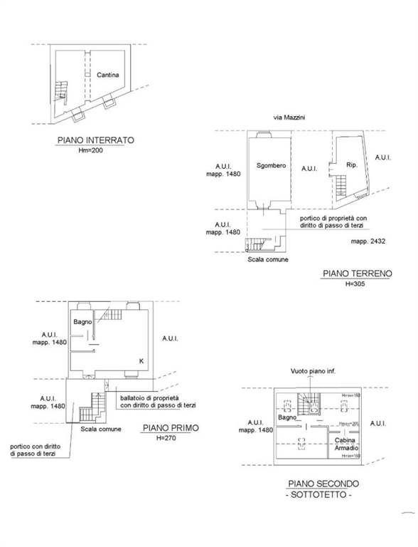
Appartamento In In Vendita A Luvinate
Scheda Immobile
Home
Scheda Immobile
Appartamento In In Vendita A Luvinate
Codice CP/1030 - Appartamento In In Vendita A Luvinate
Prezzo
175.000 EUR
Metri quadri
100
Classe
G (321,12 [kWh/m²a])
Locali
4
Mq Commerciali
100
Box
1
Stato Immobile
Ristrutturato
Grado
Medio
Posizione
Centro Storico
Piano
Piano Terra
Totale Piani
Tre
Lati Liberi
3
Giardino
No
Arredi
Non Arredato
Tipo Soggiorno
Doppio
Tipo Cucina
A Vista
Riscaldamento
Autonomo
Tipo Riscaldam.
Caldaia
Tipo Impianto
Radiatori
Fonte Energetica
Metano
Acqua Calda
Autonoma
Raffrescamento
No
Infissi
Legno Doppio Vetro
Serramenti
Buono
Persiana
Persiana Legno
Pavim. Giorno
Ceramica
Pavim. Notte
Parquet
Pavim. Cucina
Ceramica
Pavim. Bagno
Ceramica
Accesso Disabili
No
Accesso interno disabili
Non accessibile
Appartamenti
Uno
Isolamento
Non presente
Isolamento termico
Nessuno
Isolamento acustico
Nessuno
Destinato a residenti
Si
VIA Mazzini 1, Luvinate (VA)
Ricerca rapida immobile
Vendite
Affitti
Attività
Immobili commerciali
Cantieri
Tutte
Barasso (VA)
Bedero Valcuvia (VA)
Bisuschio (VA)
Brunello (VA)
Caravate (VA)
Casciago (VA)
Castello Cabiaglio (VA)
Cocquio Trevisago (VA)
Cugliate Fabiasco (VA)
Ferrera di Varese (VA)
Gavirate (VA)
Laveno Mombello (VA)
Lerici (SP)
Locate Varesino (CO)
Luino (VA)
Luvinate (VA)
Malgesso (VA)
Malnate (VA)
Milano (MI)
Montegrino Valtravaglia (VA)
Solbiate Arno (VA)
Travedona Monate (VA)
Travedona-Monate (VA)
Valganna (VA)
Varese (VA)
Viggiù (VA)
Tutte
Qualsiasi
1 locale
2 locali
3 locali
4 o più locali
Appartamento
Attico
Azienda Agricola
Baita
Cantina
Capannone
Casa singola
Castello
Crotto
Dépendance
Duplex
Garage
Hotel
Laboratorio
Loft
Magazzino
Maisonette
Mansarda
Negozio
Porzione di Casa
Porzione Villa
Posto Auto
Posto Barca
Rustico/Casale
Stabile / Palazzo
Tenuta
Terreno Agricolo
Terreno Edificabile
Trullo
Ufficio
Villa
Villa Bifamiliare
Villetta schiera
Inserimento
Codice
Categoria
Città
Zona
Prezzo
Metri quadri
Cerca
Le nostre proposte
Vendite
(64)
Affitti
(16)
Attività
(2)
Immobili commerciali
(14)
Cantieri
(0)
Social Networks
Tweet
Privacy Policy
-
Revoca consensi
- Powered by
Miogest.com
Mantieni impostazioni di default X
Uso dei cookies
Questo sito fa uso di cookies. I nostri cookies (propri) e quelli dei nostri Partners (cookies di terzi) servono per poterti offrire un'esperienza unica con noi. Per questo motivo, insieme ai nostri partners, raccogliamo e processiamo informazioni non sensibili (come l'identificatore del tuo dispositivo o le pagine che visiti).
In qualsiasi momento potrai eliminare, modificare o verificare le informazioni che condividi in
Cookie preference
o nella nostra
Cookie Policy
e
Privacy Policy
.
Necessari
Funzionali
Profilazione
Analitici
Accetta tutti
Rifiuta tutti
Accetta selezionati
Cookie preference